
This 2 story, well-built brick house with an exceptional ground floor built from stone, is in a prime location and so commands a high price tag. The village is still thriving, boasting a school, winery with open-air swimming pool, a hotel, many restaurants and cafes, grocery shops and a dentist. Very close to the Greece and Turkey border crossings, this exceptional village is a treasure to find property in.

The house is north facing with views of the Eastern Rhodope Mountains. There is another plot behind, before a dirt road and a few well presented houses.

With external stairs the house can be made into 2 self contained apartments. The upper doors have been replaced with wood effect PVC.



The 1st floor entrance is under the terrace and has a conservatory/porch. The central room has 4 rooms leading off, though room 1 extends into the kitchen so is double sized. Also this house is unusual as it has a back door to the garden.

The 1st floor plan is a rough guide to show the layout.




On 1st floor the old wooden windows are in good condition as they have external shutters. Village water supplied. There is slight damp on the base of the walls as below ground level but this can be addressed with a channel and French drain.

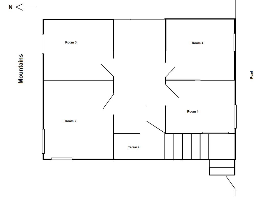
The 2nd floor plan is an approximate guide.



On 2nd floor, all windows have been replaced with double glazed PVC and fly nets. 5 rooms in total comprising a central room, offering sunset views, that could become a kitchen area. 4 rooms lead off this. Room 1 over looks the street and Room 2 overlooks over the rear garden.



Room 3 is at the back of the house with spectacular views to the mountains. Room 4 has water plumbed to it ready to make a large bathroom or kitchen.

This photo was taken before all of the 2nd floor windows have been replaced with new wood effect double glazed PVC. The roof is in very good condition however would benefit from guttering.


The garden is over 1000sqm and very overgrown as the house is not lived in. There is a falling down, mud brick barn with stone base, which could be rebuilt as extra guest accommodation. Alternatively, it could demolished to open up views to the mountains behind, and made into a outdoor eating area with BBQ or a sunbathing terrace,

Location: Village Malko Gradishte, Haskovo region, South East Bulgaria, boasting the warmest year round climate of Bulgaria. In the village is the Secret Waterfalls Ecotrail and close by are the Deaf Stones. Nearby reservoirs are popular fishing spots and the region has many vineyards producing wonderful wines.
Closest town Lyubimets: 14 km
Greek and Turkish borders: 21 km
Svilengrad: 19 km
Harmanli: 32 km
Haskovo: 55 km
Plovdiv: 150 km
Sofia: 300 km
Burgas: 175 km
Tourist areas:
Deaf stones: 7 km
Mezek Fortress and Thracian Tombs: 12 km
Madjarovo Vulture Sanctuary and Nature Centre: 28 km
For more information or to book a viewing , please email Meli:
hideawayhomesbulgaria@gmail.com
To view other houses for sale, click on HIDEAWAY HOMES IN BULGARIA
Discover more from Hideaway Homes in Bulgaria
Subscribe to get the latest posts sent to your email.